top of page

Professional Drafting & Detailing Services

Shop Drawings
Mill Work
Glazing
Mechanical
Plumbing
HVAC
Electrical
Lighting
![]() Handrail Shop DrawingsHandrail Elevations, Plans & Details | ![]() Millwork DetailsPlan Sections & Vertical Sections | ![]() rsz_mw-405-1-page-001_edited.jpgSections & Door Details |
|---|---|---|
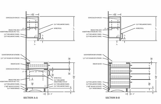
![]() Cabinetry Shop DrawingsElevations & Sections | ![]() Cabinetry Shop DrawingsElevations & Sections | ![]() Cabinetry Shop DrawingsSections |
![]() Cabinetry Shop DrawingsFloor Plan | ![]() Cabinetry Shop DrawingsElevations |
bottom of page







